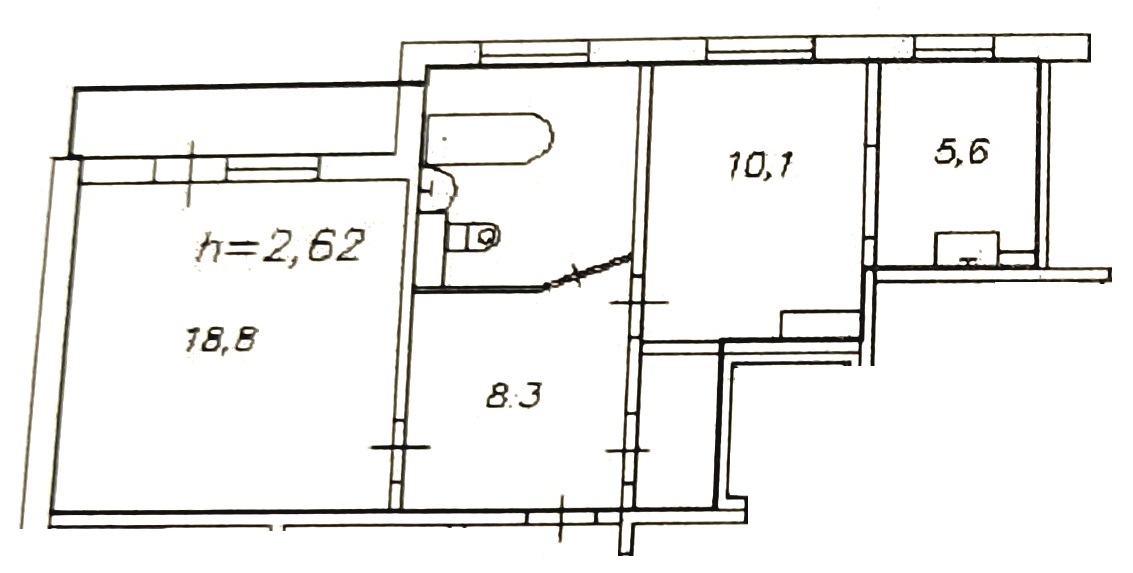
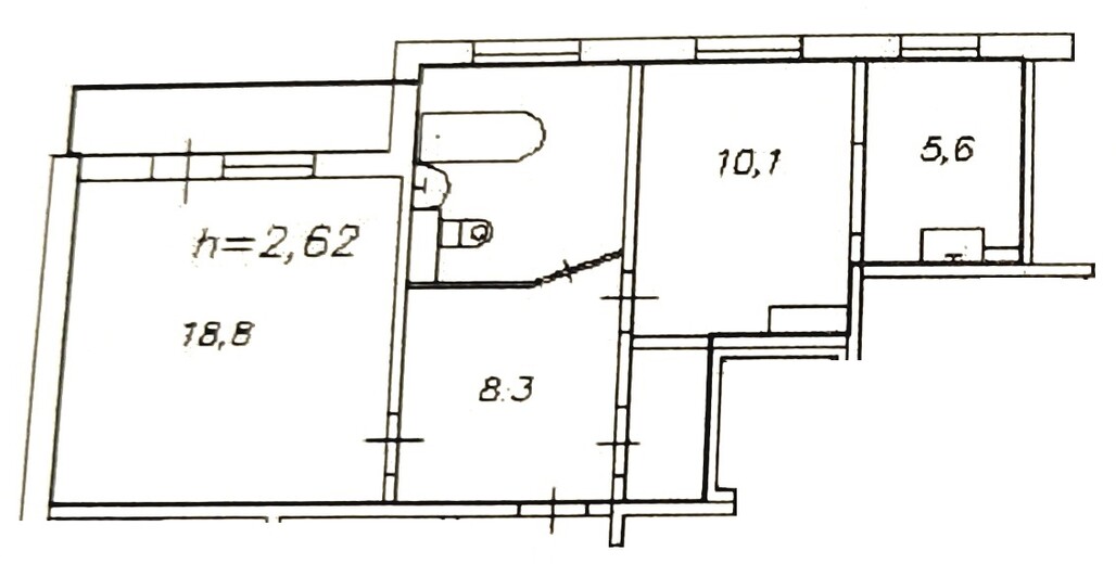
Кол-во комнат |
2 |
Площадь общая, м2 |
51.9 |
Площадь жилая, м2 |
30 |
Площадь кухни, м2 |
5.6 |
Этаж / Этажность |
6 / 16 |
Материал стен |
Панель |
Санузел |
Совмещенный |
Балкон / Лоджия |
Балкон |
Плита |
Электроплита |
Продается 2-комн. квартира, 51.9 м2

- Характеристики
- Описание
Продается просторная 2-комнатная квартира в экологически чистом Октябрьском районе
Предлагаем к продаже светлую двухкомнатную квартиру с индивидуальной планировкой в 16-этажном панельном доме. Квартира находится на 6 этаже, что гарантирует прекрасную инсоляцию и панорамный вид из окон.
Ключевые преимущества:
· Простор и свет: Уникальная планировка с изолированными комнатами создает ощущение простора и уюта, высокие потолки дают ощущение свободы. Окна выходят на солнечную сторону, наполняя пространство светом.
· Экология и инфраструктура: Квартира расположена в одном из самых зеленых и экологически благоприятных районов Красноярска — Октябрьском.
· Современный ремонт: Выполнен качественный косметический ремонт. Вся мебель и бытовая техника новые, покупались для личного пользования. Высокие потолки
· Кухня мечты: Установлена современная кухня от проверенного производителя с премиальной фурнитурой Blum, что гарантирует ее долговечность и безупречную работу.
· Удобная ванная: Редкое преимущество — ванная комната с собственным окном, что обеспечивает естественную вентиляцию и дополнительное освещение.
· Транспортная доступность: В шаговой доступности строится станция метро, что в будущем значительно повысит транспортную доступность района.
· Комфортная среда: Через дорогу оборудована зарядная станция для электромобилей и ухоженная кинологическая площадка для выгула домашних питомцев.
· Соседи: Дом с прекрасными, спокойными соседями.
Квартира полностью готова к комфортному проживанию! Не упустите шанс приобрести отличный дом в перспективном и тихом районе.
Юридическая чистота сделки гарантирована, квартира без обременений. Возможна покупка в ипотеку. Все документы готовы к сделке. Рассмотрим любую форму расчетов! Поможем оформить ипотеку у любого банка под ВЫГОДНЫЙ процент!
Сопровождение на всех этапах сделки ГАРАНТИРУЕМ.
Приглашаю вас на просмотр! Звоните!
Объект на карте
Можете оставить контакты, и мы сами перезвоним Вам:
Смотрите также








