Кол-во комнат |
3 |
Площадь общая, м2 |
52.2 |
Площадь жилая, м2 |
35 |
Площадь кухни, м2 |
5.5 |
Этаж / Этажность |
2 / 5 |
Материал стен |
Кирпич |
Санузел |
Раздельный |
Балкон / Лоджия |
Балкон |
Плита |
Электроплита |
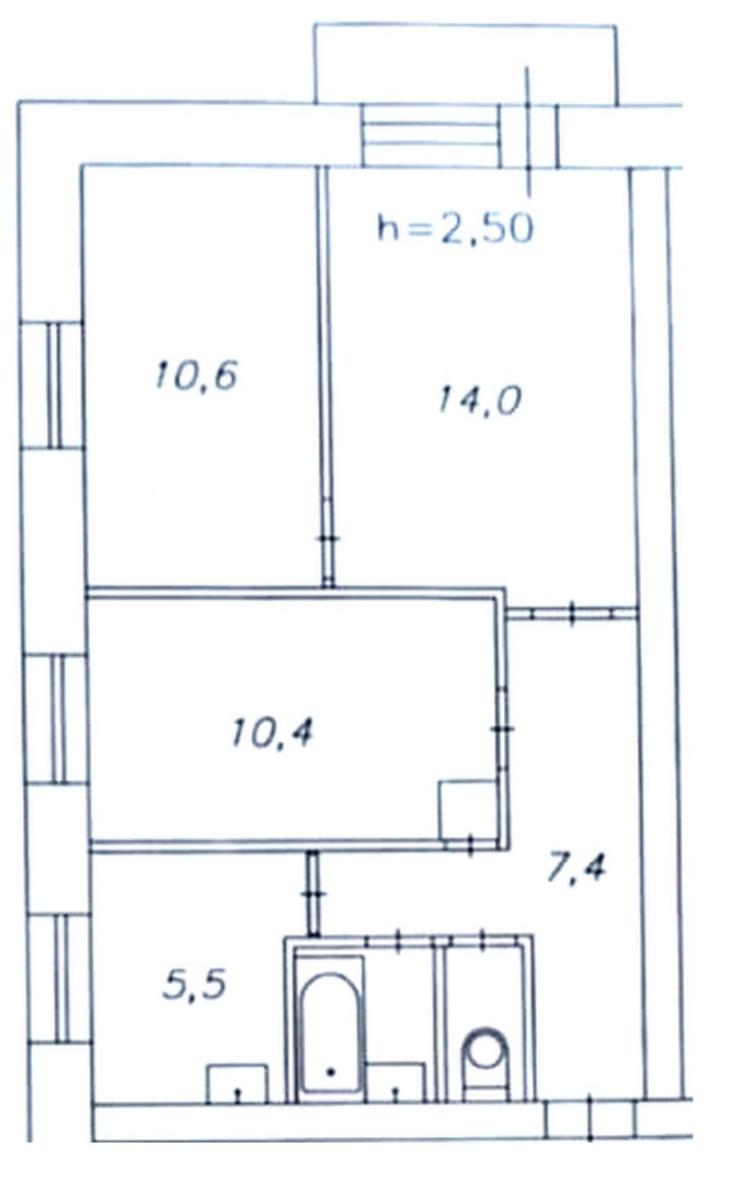
Продается 3-комн. квартира, 52.2 м2

- Характеристики
- Описание
Продается уютная 3-комнатная квартира в Красноярске на улице Академика Киренского, 27А. Общая площадь составляет 52,5 кв. м, из которых жилая площадь занимает 34,5 кв. м, а кухня — 6,2 кв. м. Квартира расположена на 2 этаже 5-этажного кирпичного дома, построенного в 1972 году. Электро.Окна выходят на улицу, в квартире есть один балкон. Квартира без ремонта, что дает возможность создать интерьер по своему вкусу. Удобная планировка позволяет рационально использовать пространство. В квартире один отдельный санузел.
Дом в хорошем состоянии, с наземной парковкой. Прочный кирпичный материал постройки обеспечивает комфортный температурный режим в любое время года.
Район с развитой инфраструктурой: рядом находятся школы, детские сады, клиники и магазины. Все необходимое для комфортной жизни в шаговой доступности.
Продажа квартиры без обременений, возможна ипотека. Документы готовы к сделке, вся юридическая сторона вопроса полностью прозрачна.
Записывайтесь на просмотр уже сегодня, чтобы своими глазами оценить все преимущества этой квартиры. Ждем вашего звонка!
Объект на карте
Можете оставить контакты, и мы сами перезвоним Вам:
Смотрите также








