Продается 2-комн. квартира, 63.4 м2

г. Красноярск, Октябрьский район, ул. Бабушкина, д. 2
9 100 000 ₽ 143 533 ₽/м2
Этаж 10 из 14
Площадь 63.4 м2
Агент по недвижимости
Агент по недвижимости
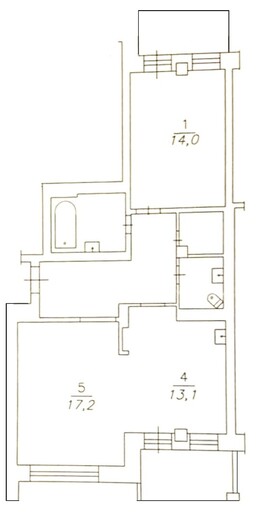
Характеристики
  • Характеристики
  • Описание
Кол-во комнат
2
Площадь общая, м2
63.4
Площадь жилая, м2
31.2
Площадь кухни, м2
13.1
Этаж / Этажность
10 / 14
Материал стен
Кирпич
Санузел
Раздельный
Балкон / Лоджия
Две лоджии
Плита
Электроплита

Продается двухкомнатная квартира в Октябрьском районе. Общая площадь квартиры составляет 63,4 кв. м, а кухня - 11 кв. м. Квартира расположена на 10 этаже 14-этажного кирпичного дома, построенного в 2006 году. Это отличный вариант для тех, кто ищет комфортное жилье в современном доме.

В квартире выполнен косметический ремонт, что позволяет новому владельцу сразу заехать и жить. Комната светлая и просторная. Из окон открывается вид на улицу, благодаря чему в квартире всегда много света. Удобная планировка включает наличие лоджии и отдельного санузла. Все это создает атмосферу уюта и комфорта для вашего проживания.

Дом находится в хорошем состоянии, оборудован пассажирским лифтом и мусоропроводом, что очень удобно для повседневной жизни. Для автовладельцев предусмотрена наземная парковка во дворе, поэтому всегда есть возможность оставить автомобиль рядом с домом.

Район обладает развитой инфраструктурой. В пешей доступности находятся школы и детские сады, что особенно важно для семей с детьми. Также рядом расположены магазины, где можно приобрести все необходимое для жизни. Отличная транспортная доступность позволяет быстро добраться до любой точки города.

Квартира полностью готова к сделке. Возможна продажа в ипотеку, что облегчает процесс приобретения. Все документы в порядке, и сделка будет быстрой и безопасной.

Приглашаем вас на просмотр! Это отличная возможность приобрести комфортное жилье в одном из лучших районов Красноярска. Звоните и записывайтесь на удобное для вас время!

Объект на карте

Связаться с менеджером:
Написать в чат:

Можете оставить контакты, и мы сами перезвоним Вам:

Смотрите также