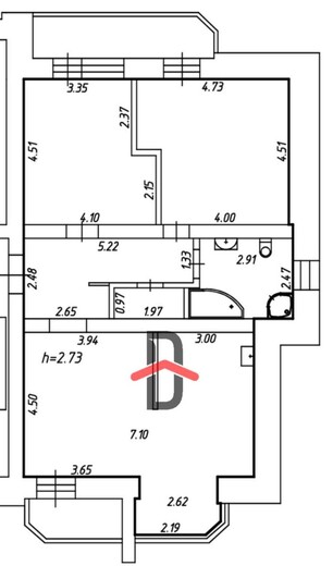
Продается 3-комн. квартира, 91.8 м2

г. Красноярск, Железнодорожный район, ул. Красная площадь, д. 9а
21 000 000 ₽ 228 758 ₽/м2
Этаж 6 из 9
Площадь 91.8 м2
Агент по недвижимости
Агент по недвижимости
Характеристики
  • Характеристики
  • Описание
Кол-во комнат
3
Площадь общая, м2
91.8
Площадь жилая, м2
50
Площадь кухни, м2
13
Этаж / Этажность
6 / 9
Материал стен
Кирпич
Санузел
Совмещенный
Балкон / Лоджия
Две лоджии
Плита
Электроплита

Продаётся 3х комнатная квартира в Железнодорожном районе. Огромное количество солнечного света и окна на две стороны создают ощущение простора и свободы. Одно из преимущества данного объекта считается большая кухня-гостиная. Здесь всё сделано «для себя» и со вкусом. Продуманное световое зонирование позволяет менять сценарии жизни — от яркого рабочего освещения до уютного вечернего приглушенного света. Компактная, но просторная планировка с гардеробными позволяет поддерживать идеальный порядок, не загромождая комнаты лишней мебелью. Красная площадь, уютные скверы и набережная Енисея в паре минут ходьбы — для лучших вечерних прогулок. Наличие отдельной лондри (прачечной) — это спасение для большой семьи.

Все бытовые процессы скрыты от глаз.
Формат «Заезжай и живи»: Вам не нужно тратить месяцы на ремонт и выбор техники. Кухня полностью укомплектована всем необходимым — от встроенных техник до мебели.

Район Красной площади — это статус исторического центра. Вся инфраструктура «сферы обеспечения» под рукой, вам не нужно никуда ехать.


1 взрослый собственник. Более 5 лет . Без обременения.
Записывайтесь на просмотр заранее!

Объект на карте

Связаться с менеджером:
Написать в чат:

Можете оставить контакты, и мы сами перезвоним Вам:

Смотрите также