Продается 3-комн. квартира, 60.4 м2

г. Красноярск, Железнодорожный район, ул. Железнодорожников, д. 16Б
7 300 000 ₽ 120 861 ₽/м2
Этаж 8 из 9
Площадь 60.4 м2
Бураменская Наталья Сергеевна
Бураменская Наталья Сергеевна
Характеристики
  • Характеристики
  • Описание
Кол-во комнат
3
Площадь общая, м2
60.4
Площадь жилая, м2
39.8
Площадь кухни, м2
7.9
Этаж / Этажность
8 / 9
Материал стен
Кирпич
Санузел
Раздельный
Балкон / Лоджия
Балкон
Плита
Электроплита

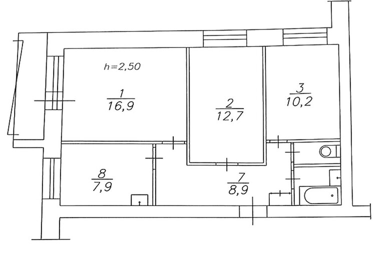
 Продаётся отличный вариант 3-х комнатной квартиры с  очень удобной планировкой (на две стороны), которая идеально подойдёт для семьи с детьми. Все комнаты раздельные.  Гостиная 16,9 кв.м., две спальни  12.7 кв.м и 10.2 кв.м. Раздельный сан.узел. Окна кухни и  гостиной выходят во внутренний двор, на детский сад и школу. Балкон застеклен современным профилем.

Во дворе дома средняя  школа №4 и детский садик № 257. Так же в шаговой доступности Финасово экономический колледж. Дом расположен в очень удобной локации. До центра пешком 15 минут. Очень удобная транспортная развязка (для тех, у кого нет автомобиля) — две остановки в шаговой доступности, откуда 13 маршрутов доставят вас в любую точку города.

Приглашаем обязательно посмотреть эту квартиру и, вполне вероятно, что это окажется как раз то, что вам нужно!

Объект на карте

Связаться с менеджером:
Написать в чат:

Можете оставить контакты, и мы сами перезвоним Вам:

Смотрите также