Продается помещение свободного назначения, 1055.3 м2

г. Красноярск, Кировский район, ул. Кутузова, д. 1 стр. 107
50 000 000 ₽ 47 380 ₽/м2
Площадь 1055.3 м2
Коростелева Наталья Валериевна
Коростелева Наталья Валериевна
Характеристики
  • Характеристики
  • Описание
Помещение
Помещение свободного назначения
Площадь, м2
1055.3
Этаж
2

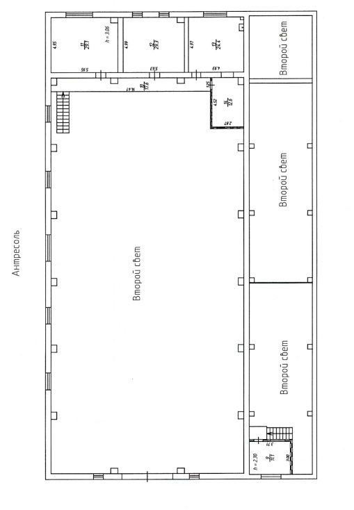
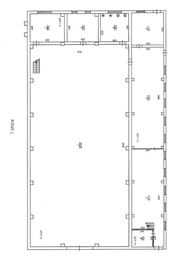
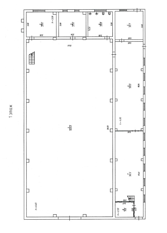
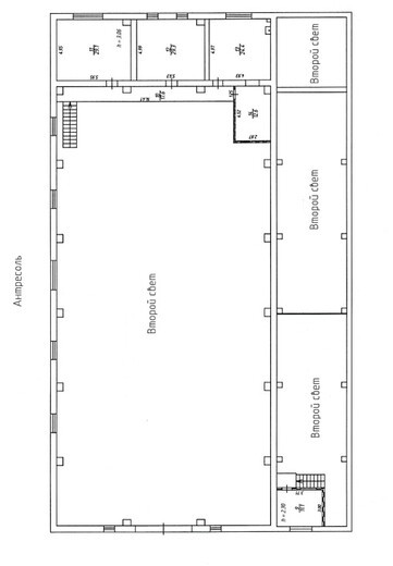
Продаётся помещение свободного назначения, общей площадью 1150кв.м. А также рассмотрим обмен на коммерческие объекты, автомобили, дорожную технику, квартиры и т.п. Материал стен смешанного типа — кирпич, бетонные панели. Въезд транспорта организован через подъёмные ворота. Пол в помещении бетонный. В данный момент используется в качестве автобокса для крупногабаритного транспорта (площадь бокса 624,5кв.м.). Высота потолков в основном боксе 8,7м, в антресоли - 3,2м. Здесь же (на нижнем уровне) имеется два подсобных помещения (27,4 и 29,4кв.м.), которые используются как складские. Рядом сан.узел с душевыми (площадь 25кв.м.). На антресольном уровне - две жилых комнаты (комнаты отдыха, площадью 27,7 и 29,7кв.м.), кухня с мебелью и техникой (18кв.м.) и столовая (24,5кв.м.). Территория участка огорожена бетонным забором. Въезд организован через откатные ворота на пульте управления. Также имеются распашные ворота на задней части двора. Максимально-допустимое количество потребляемой эл.энергии объекта - 250кВт/час., мощность 380Вт. Коммуникации в помещении городские: холодная вода (для нагрева установлены бойлеры) и водоотведение. Отопление автономное (твёрдотопливный котёл). Установлена пожарная сигнализация и камеры наблюдения, как внутри бокса, так и на прилегающей территории. В основном боксе имеется подвальное помещение (пол и стены - бетон). Объект расположен на очень удобной транспортной развязке, на второй линии территории промзоны, со свободным подъездом для грузовых авто — кольцо Мичурина-Волжская-Грунтовая.

Объект на карте

Связаться с менеджером:
Написать в чат:

Можете оставить контакты, и мы сами перезвоним Вам:

Смотрите также