Помещение |
Помещение свободного назначения |
Площадь, м2 |
146 |
Этаж |
1 |
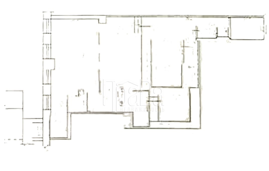
Сдается в аренду помещение свободного назначения, 146 м2
г. Красноярск, Кировский район, ул. имени Газеты Пионерская Правда, д. 8
135 000 ₽ / Мес.
Площадь
146 м2
Печурова Лариса Владимировна
Характеристики
- Характеристики
- Описание
Сдам нежилое помещение 146 кв.м. в пристройке жилого панельного дома. Дом расположен в жилом районе с развитой инфраструктурой по ул. Пионерская Правда, д. 8.
Первый этаж, отдельный вход. Первая линия, парковочные места. Отличный пеший и транспортный трафик. Мощность 30 кВт.
Помещение свободного назначения. Входная группа с пандусом. Подойдет под любой вид деятельности. В хорошем состоянии. Готово к заселению новых арендаторов.
Долгосрочная аренда.
Оплата 150 000 руб./мес. + ресурсные эксплуатационные расходы.
Залог 150 000 руб.
Показ по предварительной договоренности.
Объект на карте
Связаться с менеджером:
Написать в чат:
Можете оставить контакты, и мы сами перезвоним Вам:
Смотрите также
Подробнее
35 000 ₽ 18 ₽/м2
2000 м2, 1/ этаж
Емельяновский район,
п. Солонцы,
ул. Котельникова , д. 33б
Подробнее
14 900 000 ₽ 97 641 ₽/м2
152.6 м2, 1/ этаж
г. Красноярск,
Железнодорожный район,
ул. Белопольского , д. 2а
Подробнее
11 500 000 ₽ 43 760 ₽/м2
262.8 м2, 2/ этаж
Емельяновский район,
с. Шуваево,
ул. 40 лет Победы , д. 2м
Подробнее
58 000 ₽ 1 208 ₽/м2
48 м2, 1/ этаж
г. Красноярск,
Свердловский район,
ул. Судостроительная , д. 27Б
Подробнее
9 500 000 ₽ 137 085 ₽/м2
69.3 м2, 1/ этаж
г. Красноярск,
Кировский район,
ул. Апрельская , д. 1
Подробнее
18 000 000 ₽ 90 817 ₽/м2
198.2 м2, 1/ этаж
г. Красноярск,
Советский район,
ул. Алексеева , д. 19
Подробнее
8 100 000 ₽ 54 290 ₽/м2
2-комн. квартира
149.2 м2
г. Красноярск,
Октябрьский район,
ул. Калинина , д. 183
Подробнее
230 000 ₽ 708 ₽/м2
325 м2, 1/ этаж
г. Красноярск,
Советский район,
ул. Кардачинская , д. 20